Anh Trình - Ninh Bình

Anh Trình - Ninh Bình

Loại hình:
Mái Nhật - 2 tầng
Tổng diện tích:
13x11m m2

Một thiết kế hiện đại, tinh tế với những đường nét tối giản nhưng đầy cuốn hút – đây chính là phong cách mà Thái Ninh 379 mang đến cho gia chủ trong công trình mới nhất.

✅ Mặt tiền ấn tượng với đường nét kiến trúc độc đáo, kết hợp hài hòa giữa kính, mảng xanh và chi tiết trang trí sang trọng.

✅ Không gian sống được tối ưu hóa với kiến trúc mở, đón gió và ánh sáng tự nhiên, kết hợp cùng mảng xanh tạo nên sự hài hòa giữa thiết kế hiện đại và thiên nhiên trong lành. Không gian mở thoáng đãng, tận dụng ánh sáng tự nhiên và gió trời, mang lại sự thoải mái cho gia chủ.

✅ Ban công và sân thượng xanh mát, là nơi thư giãn lý tưởng sau những giờ làm việc căng thẳng.

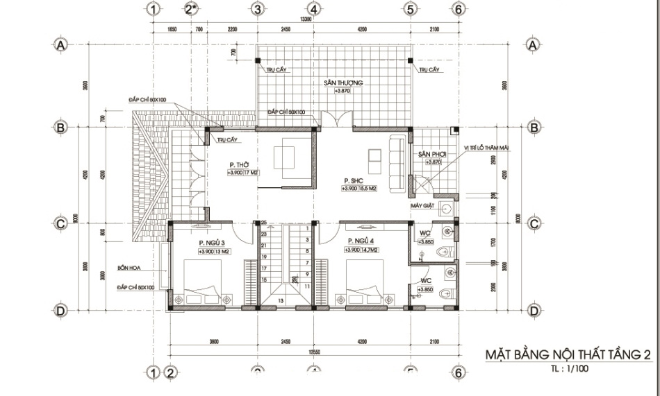
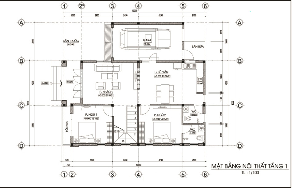
✅ Công năng tối ưu, bố trí khoa học, vừa đảm bảo tính thẩm mỹ vừa nâng cao trải nghiệm sống.

💡 Với đội ngũ kiến trúc sư sáng tạo cùng quy trình thi công chuẩn mực, Thái Ninh 379 luôn đặt chất lượng và thẩm mỹ lên hàng đầu, mang đến cho khách hàng những công trình bền vững và đẳng cấp.

👉 Nếu bạn đang tìm kiếm một ngôi nhà mang đậm dấu ấn riêng, hãy để Thái Ninh 379  đồng hành cùng bạn trên hành trình xây dựng tổ ấm mơ ước.

LIÊN HỆ :

CÔNG TY TNHH TƯ VẤN THIẾT KẾ VÀ XÂY DỰNG THÁI NINH 379

Địa chỉ: Số 5, Ngõ 1, Đường Phan Trọng Tuệ, Thị Trấn Văn Điển, Thanh Trì, Hà Nội

Điện thoại: 0901 735 379

Email: congtyxaydungthaininh379@gmail.com

Website: thaininh379.com